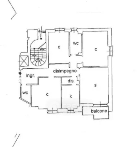
Appartamento in vendita Via Vincenzo Rabolini 9, Milano
Salva
Casa.it
1/32
  • Street View
  • Map