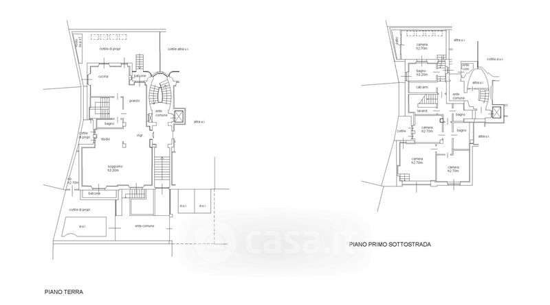
Appartamento in vendita Via Domenico Cimarosa , Milano
Salva
Casa.it
1/28
  • Street View
  • Map