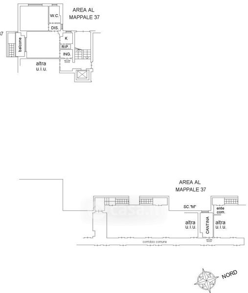
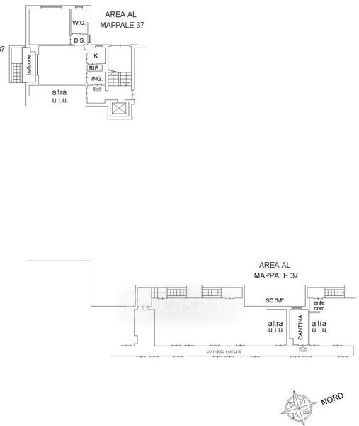
Appartamento in vendita Via Angelo Inganni 64, Milano
Salva
Casa.it
1/21
  • Street View
  • Map