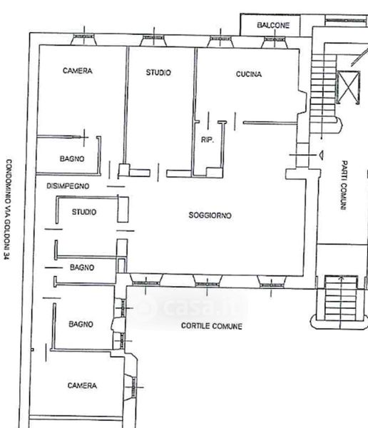
Appartamento in vendita Via Carlo Goldoni 32, Milano
Salva
Casa.it
1/24
  • Street View
  • Map