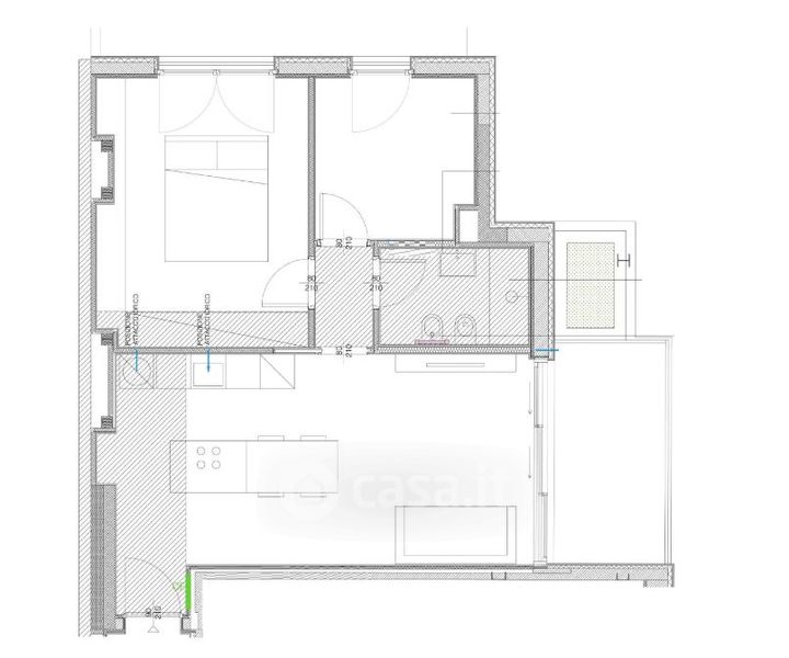
Appartamento in vendita Via Mauro Macchi 61, Milano
Salva
Casa.it
1/32
  • Street View
  • Map