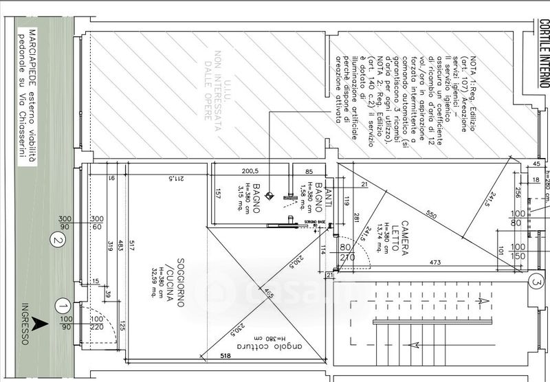
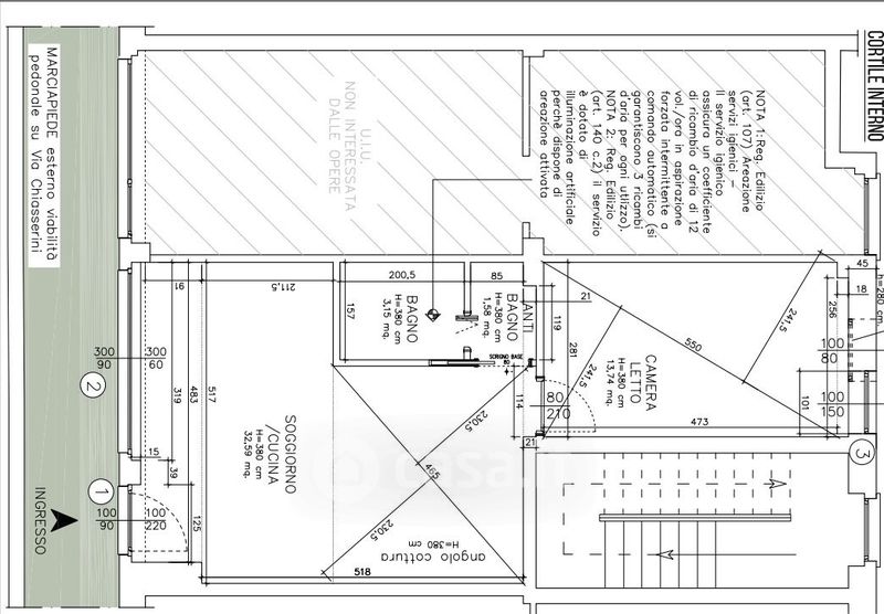
Appartamento in vendita Via Dante Chiasserini 16, Milano
Salva
Casa.it
1/11
  • Street View
  • Map