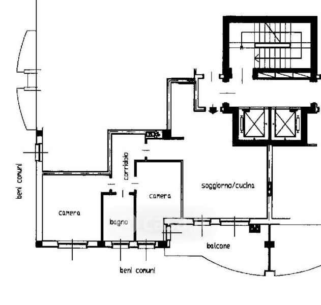
Appartamento in vendita Via Fra Riccardo Pampuri 9, Milano
Salva
Casa.it
1/35
  • Street View
  • Map