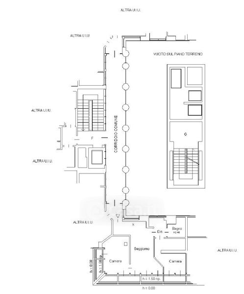
Appartamento in vendita Via Privata Trasimeno 48, Milano
Salva
Casa.it
1/31
  • Street View
  • Map