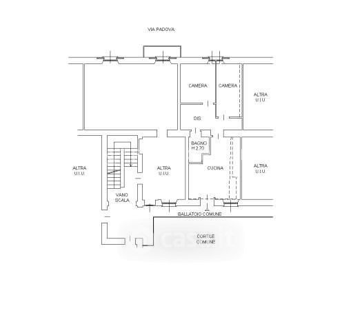
Appartamento in vendita Via Padova 65, Milano
Salva
Casa.it
1/24
  • Street View
  • Map