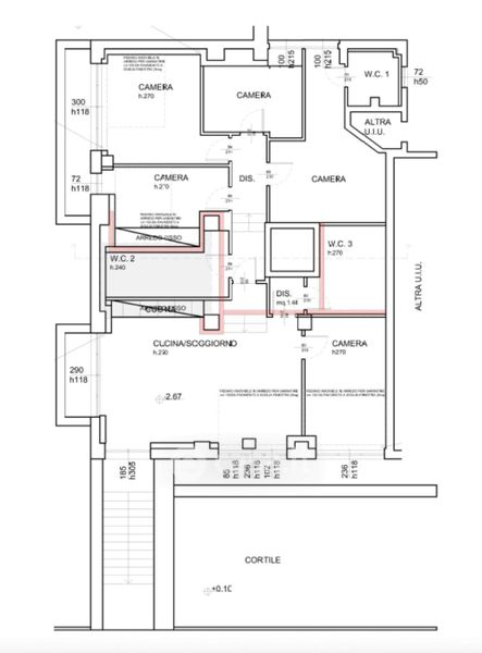
Appartamento in vendita Via Privata Stefanardo da Vimercate 19, Milano
Salva
Casa.it
1/14
  • Street View
  • Map