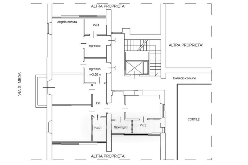
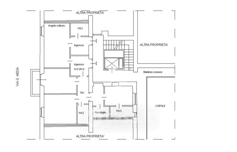
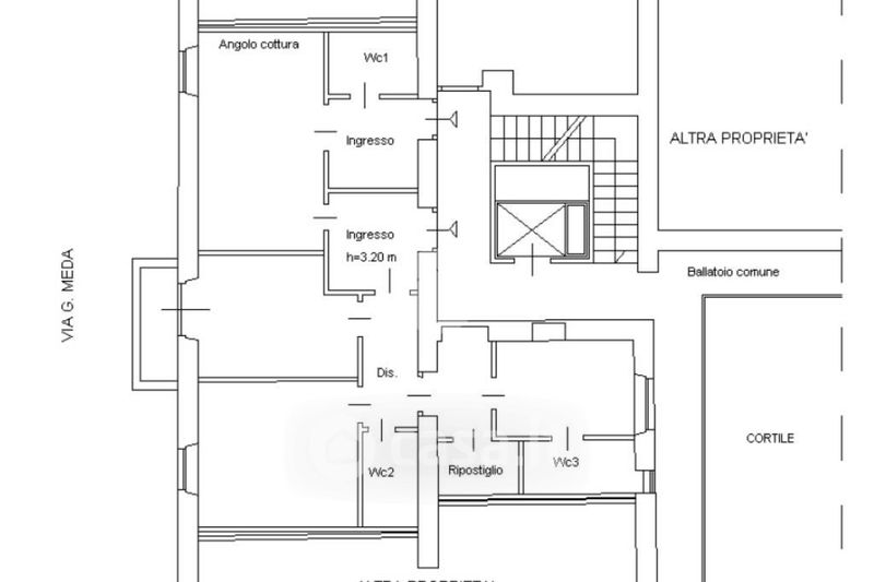
Appartamento in vendita Via Giuseppe Meda 47, Milano
Salva
Casa.it
1/38
  • Street View
  • Map