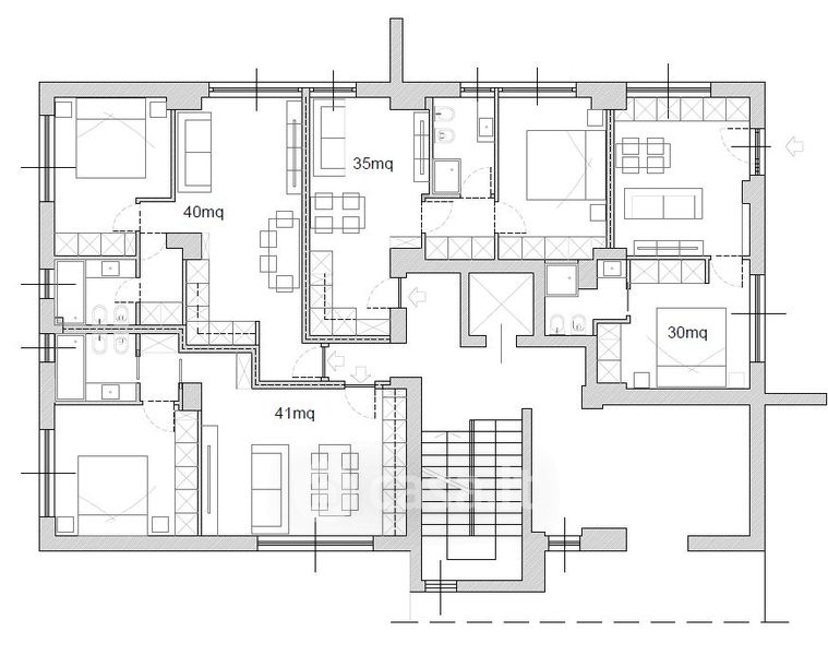
Appartamento in vendita Via Carlo Perini 19, Milano
Salva
Casa.it
1/38
  • Street View
  • Map