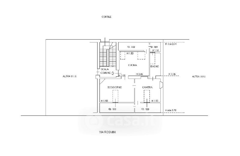
Appartamento in vendita Via Antonio Rosmini 5, Milano
Salva
Casa.it
1/20
  • Street View
  • Map