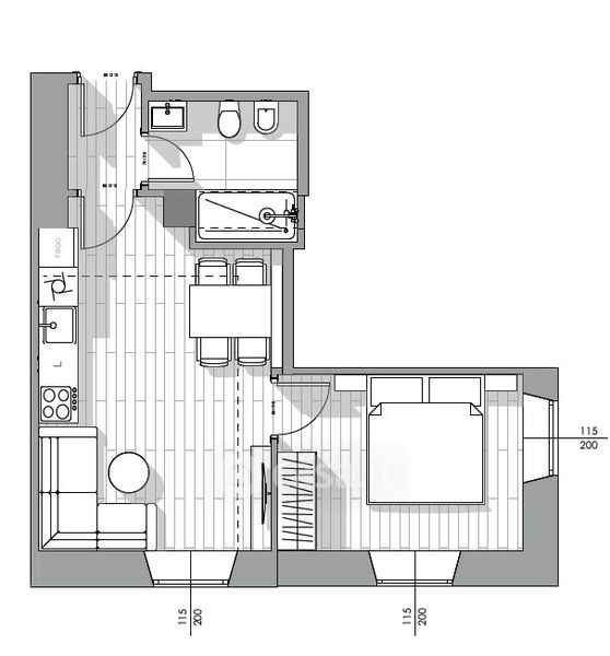
Appartamento in vendita Viale Bligny 33 -27, Milano
Salva
Casa.it
1/21
  • Street View
  • Map