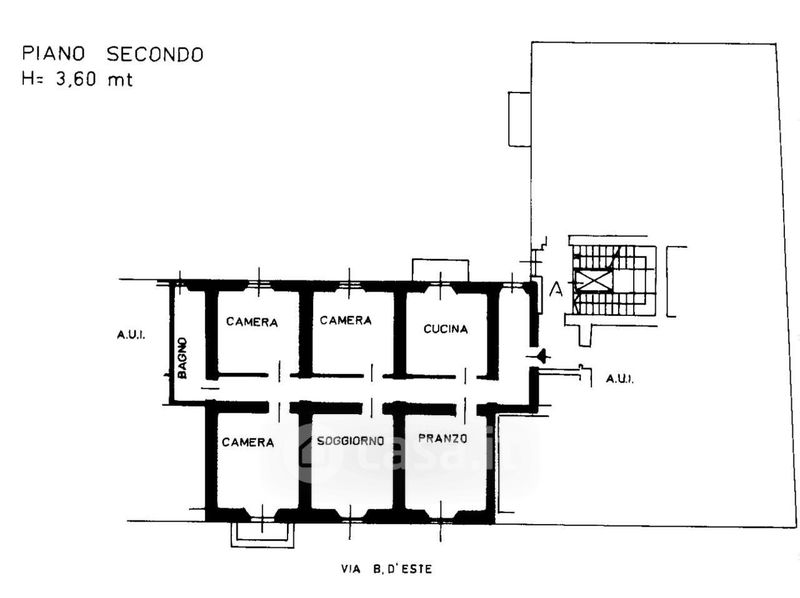
Appartamento in vendita Viale Beatrice d'Este , Milano
Salva
Casa.it
1/20
  • Street View
  • Map