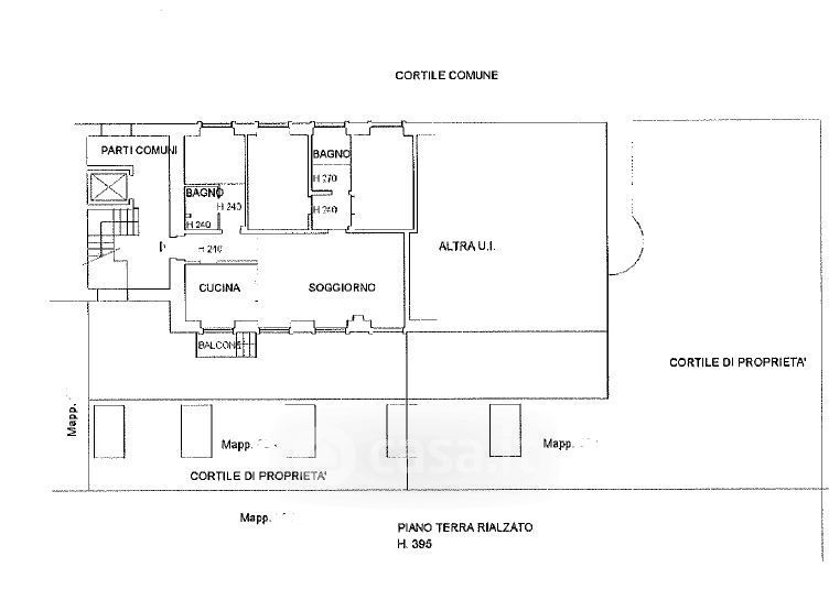
Appartamento in vendita Via Vittoria Colonna 47, Milano
Salva
Casa.it
1/32
  • Street View
  • Map