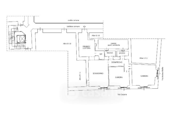
Appartamento in vendita Via Andrea Maffei 12, Milano
Salva
Casa.it
1/41
  • Street View
  • Map