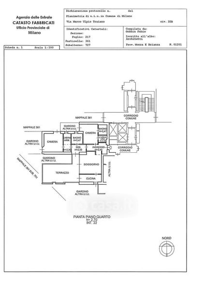
Appartamento in vendita Via Marco Ulpio Traiano 33, Milano
Salva
Casa.it
1/11
  • Street View
  • Map