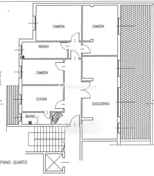
Appartamento in vendita Via Pietro Pomponazzi 7, Milano
Salva
Casa.it
1/89
  • Street View
  • Map