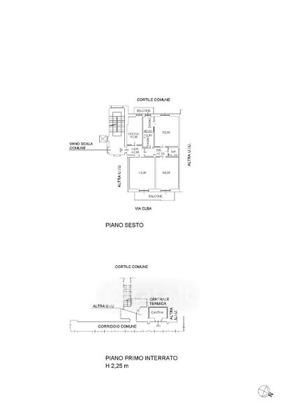
Appartamento in affitto Via Elba 26, Milano
Salva
Casa.it
1/15
  • Street View
  • Map