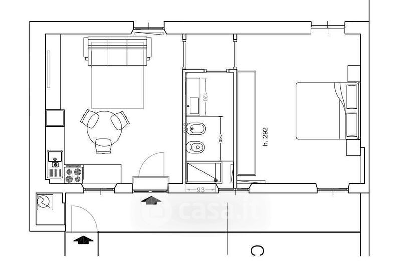
Appartamento in affitto Via Bernardino Verro , Milano
Salva
Casa.it
1/24
  • Street View
  • Map