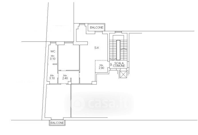
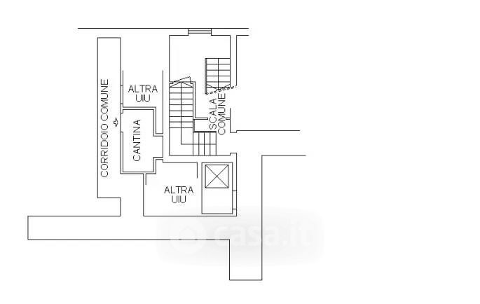
Appartamento in affitto Via Tonale 22, Milano
Salva
Casa.it
1/32
  • Street View
  • Map