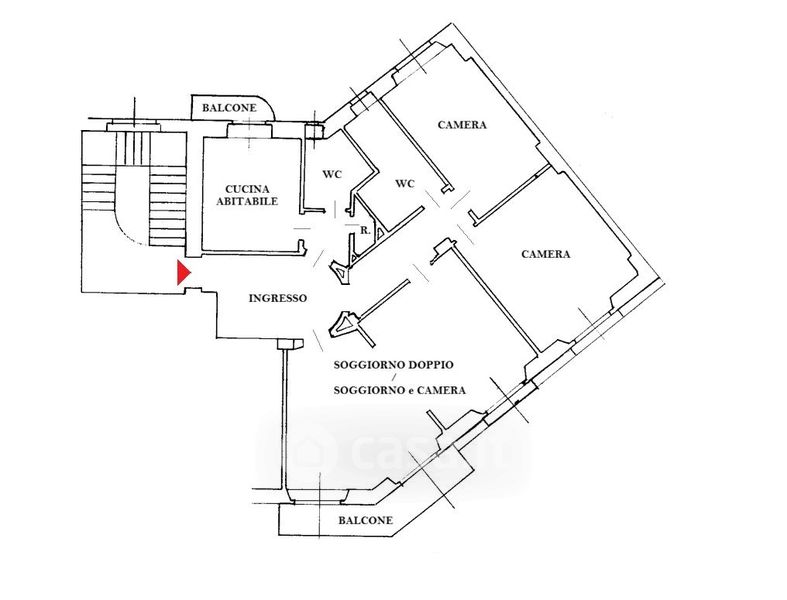
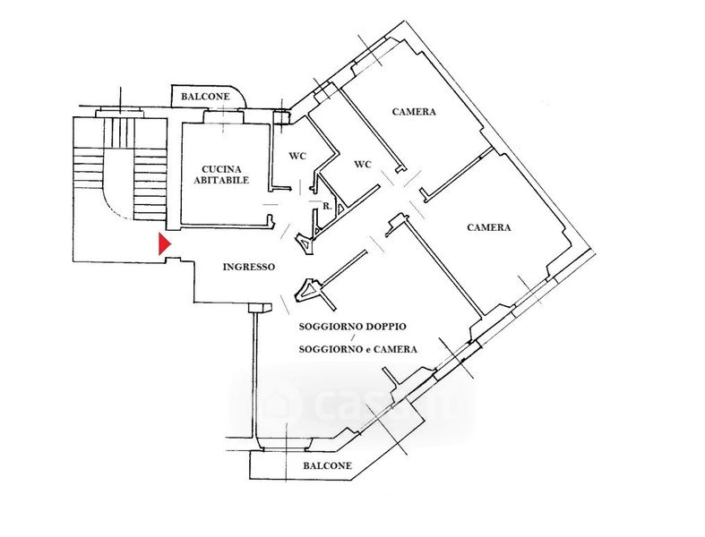
Appartamento in affitto Viale Lazio , Milano
Salva
Casa.it
1/27
  • Street View
  • Map