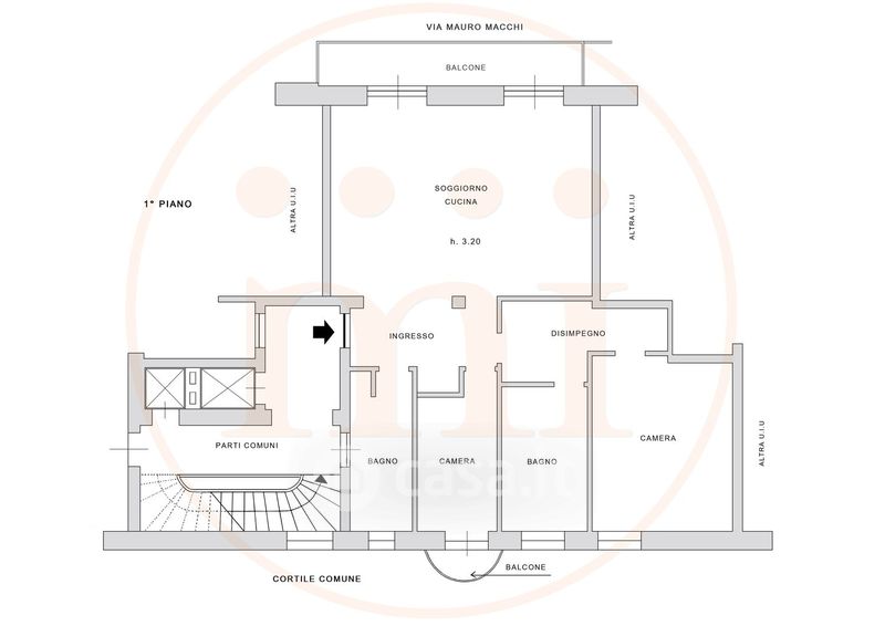
Appartamento in vendita Via Mauro Macchi 58, Milano
Salva
Casa.it
1/38
  • Street View
  • Map