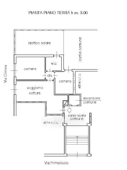
Appartamento in affitto Via Francesco Primaticcio 184, Milano
Salva
Casa.it
1/11
  • Street View
  • Map