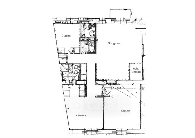
Appartamento in affitto Viale Sabotino 3, Milano
Salva
Casa.it
1/30
  • Street View
  • Map