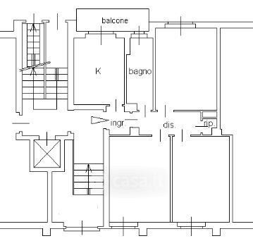
Appartamento in vendita Via Teano 21, Milano
Salva
Casa.it
1/5
  • Street View
  • Map