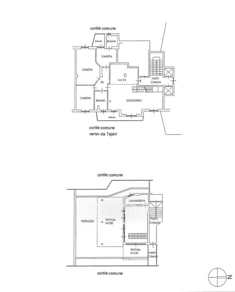
Appartamento in vendita Via Filippo Tajani 9, Milano
Salva
Casa.it
1/44
  • Street View
  • Map