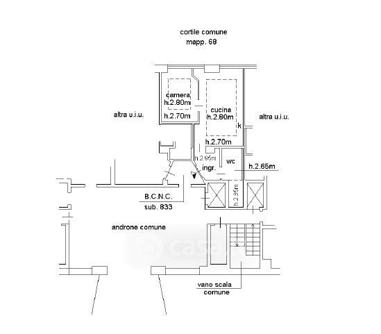
Appartamento in vendita Via Giovanni da Procida 6, Milano
Salva
Casa.it
1/30
  • Street View
  • Map