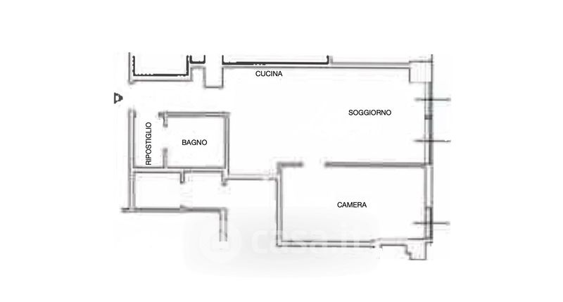
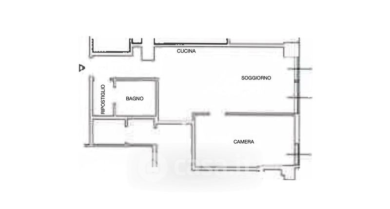
Appartamento in vendita Via Cascina Belcasule 7, Milano
Salva
Casa.it
1/26
  • Street View
  • Map