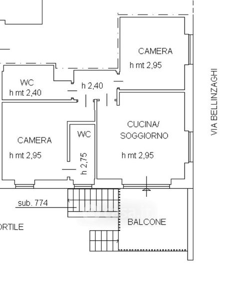
Appartamento in vendita Via Giulio Belinzaghi 23, Milano
Salva
Casa.it
1/34
  • Street View
  • Map