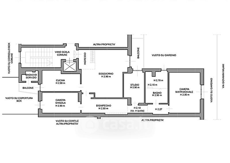
Appartamento in vendita Via Giovanni Milani 9, Milano
Salva
Casa.it
1/50
  • Street View
  • Map