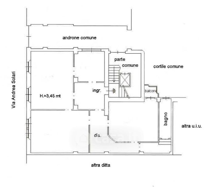
Appartamento in vendita Via Andrea Solari 56, Milano
Salva
Casa.it
1/26
  • Street View
  • Map