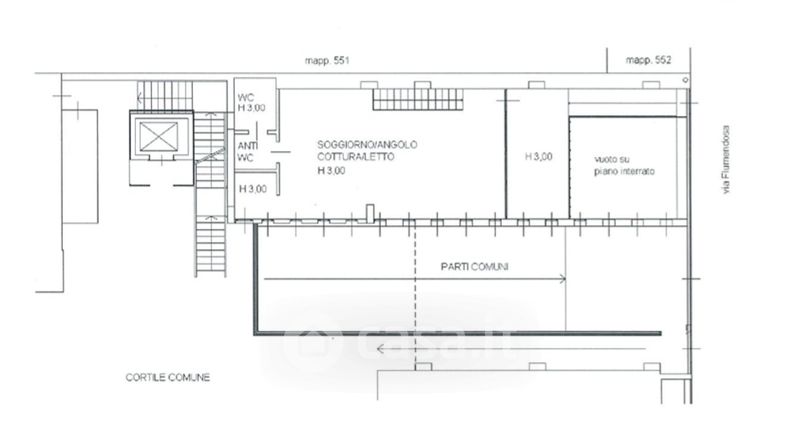
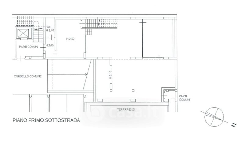
Appartamento in vendita Via Privata Flumendosa 16, Milano
Salva
Casa.it
1/61
  • Street View
  • Map