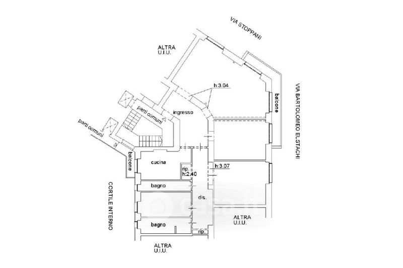
Appartamento in vendita Via Antonio Stoppani , Milano
Salva
Casa.it
1/46
  • Street View
  • Map