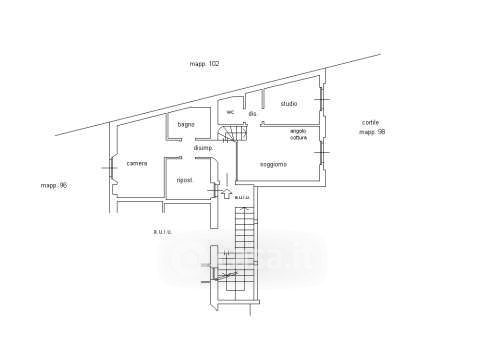
Appartamento in vendita Via Emilio de Marchi 46, Milano
Salva
Casa.it
1/19
  • Street View
  • Map