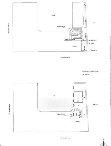
Appartamento in vendita Via Giovanni Battista Niccolini 21, Milano
Salva
Casa.it
1/26
  • Street View
  • Map