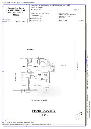
Appartamento in vendita Via Domenichino 44, Milano
Salva
Casa.it
1/44
  • Street View
  • Map