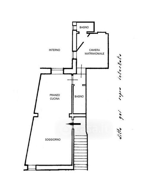
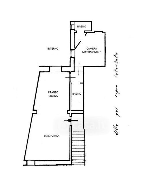
Appartamento in vendita Via Solferino 18, Milano
Salva
Casa.it
1/42
  • Street View
  • Map