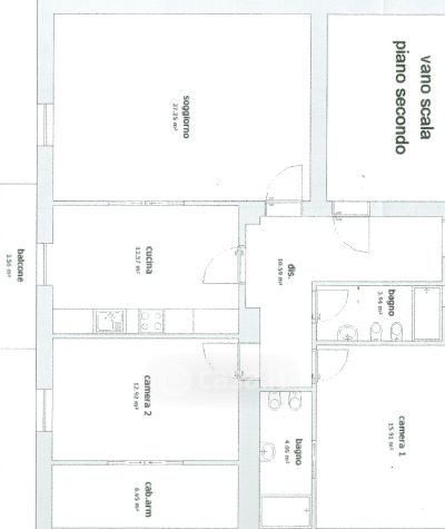
Appartamento in affitto Viale Monte Nero 43, Milano
Salva
Casa.it
1/40
  • Street View
  • Map