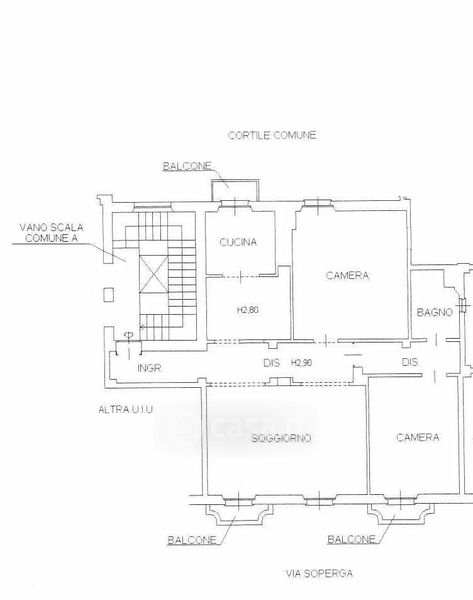
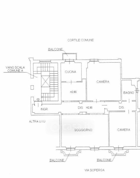
Appartamento in vendita Via Soperga 14, Milano
Salva
Casa.it
1/33
  • Street View
  • Map