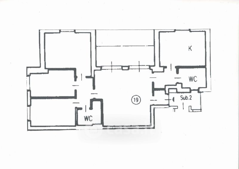
Appartamento in vendita Via Giambellino 119, Milano
Salva
Casa.it
1/18
  • Street View
  • Map