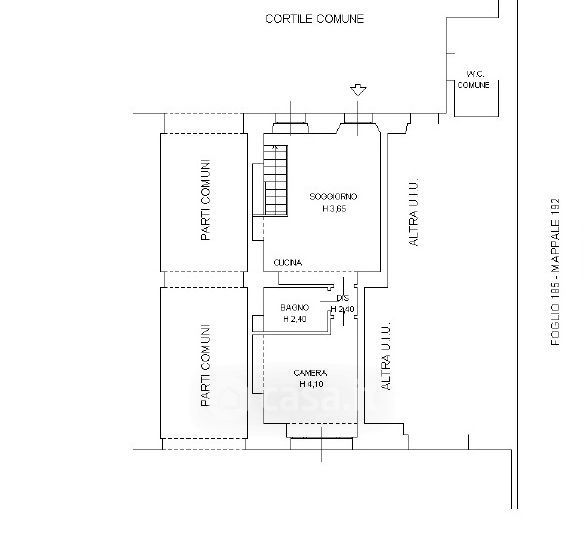
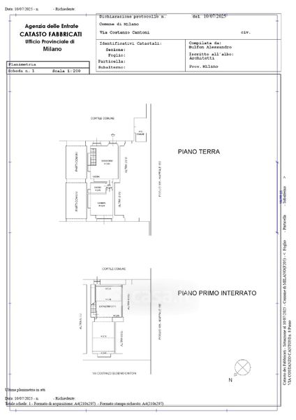
Appartamento in vendita Via Privata Costanzo Cantoni 8, Milano
Salva
Casa.it
1/37
  • Street View
  • Map