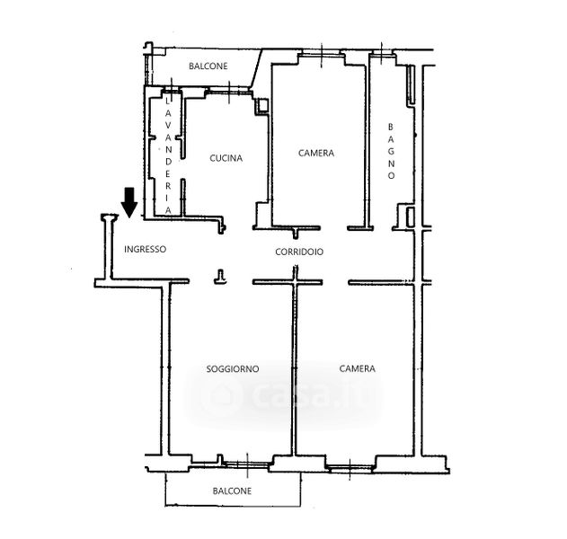
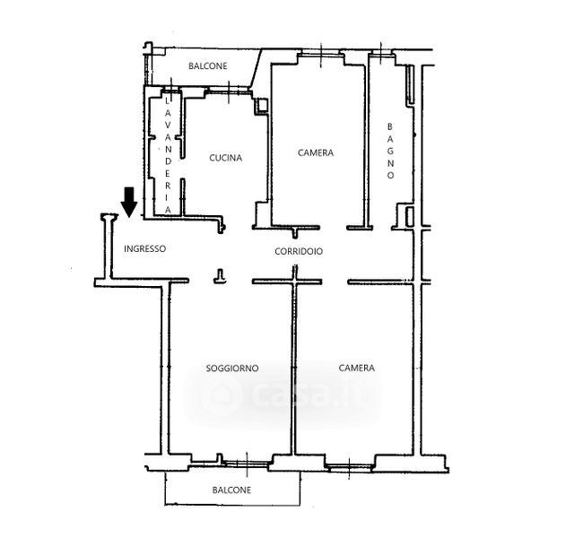
Appartamento in affitto Viale Lazio 27, Milano
Salva
Casa.it
1/33
  • Street View
  • Map