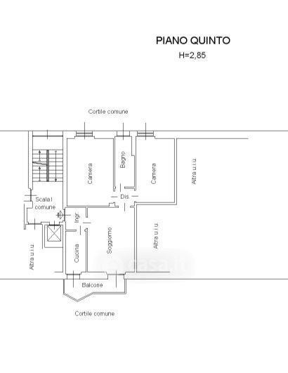
Appartamento in vendita Via Oreste Salomone 85, Milano
Salva
Casa.it
1/34
  • Street View
  • Map