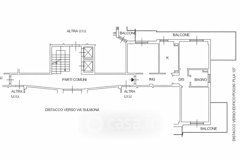
Appartamento in vendita Via Sulmona 23, Milano
Salva
Casa.it
1/15
  • Street View
  • Map