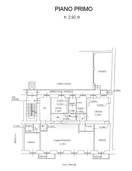
Appartamento in vendita Giuseppe Mercalli 5, Milano
Salva
Casa.it
1/46
  • Street View
  • Map