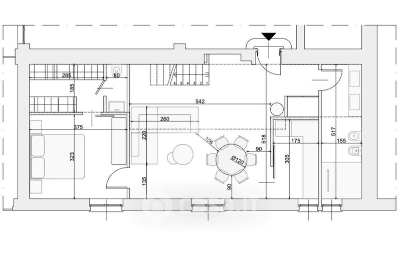
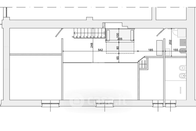
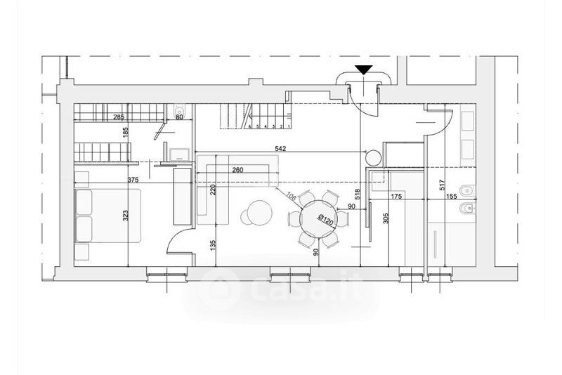
Appartamento in affitto Via Giulio Carcano 20, Milano
Salva
Casa.it
1/28
  • Street View
  • Map