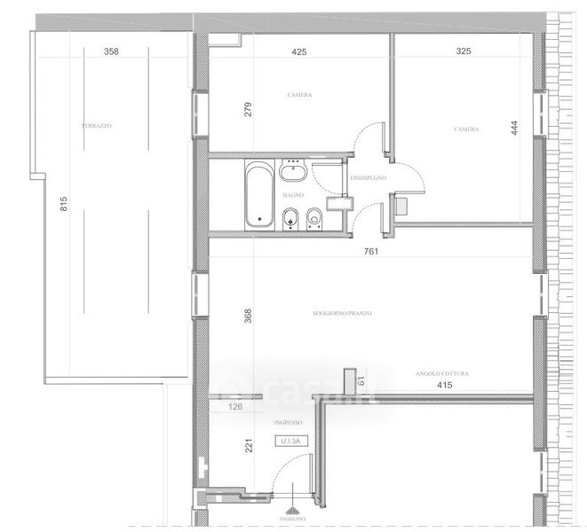
Appartamento in affitto Via Elia Lombardini 10, Milano
Salva
Casa.it
1/14
  • Street View
  • Map