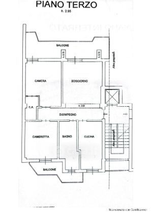
Appartamento in vendita Via Sant'Arnaldo , Milano
Salva
Casa.it
1/20
  • Street View
  • Map